HOVSA Boligen du har fundet er desværre udlejet
Vi har mange andre lækre ledige boliger du kan finde her på siden. Du er også meget velkommen til at kontakte os for at høre mere om hvilke boliger vi har, der passer til lige netop dig.
Er det her du skal bo?133 etagemeter – Unik lejlighed ved Nørresundby Torv
Bryggergade 6,
9400 Nørresundby
Pris10.300 kr./md.
Værelser3
Størrelse72 m²
Lækker lejlighed i smuk ejendom, der gennemgik en totalrenovering i 2016, og som er beliggende lige ved Nørresundby Torv.
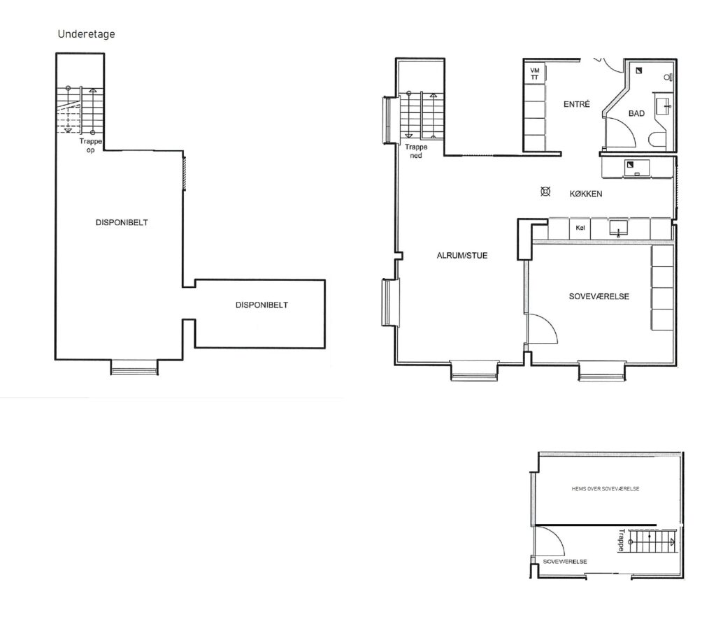
Lad os tage den klassiske gennemgang af lejligheden; Vi starter i en fin entré/gang med skabsvæg, hvorfra der er adgang til et dejligt badeværelse og et lækkert køkken i åben forbindelse til lys stue. Fra stuen er der adgang til et dejligt og lyst soveværelse, og herfra er der en trappe op til en åben hems, som kan bruges enten til værelse eller kontor.
Lejligheden rummer endvidere en skøn underetage, som vi kommer til fra stuen. Her er der et stort disponibelt rum samt et mindre rum, der lukkes med en bankboksdør. Som en smart lille detalje, er der i en del af stuen et glasgulv og ned mod underetagen, der giver et flot lysindfald.
Der er kræset om materialerne i lejligheden; Det lækre interiør i køkken og bad samt garderobe er fra Invita, og der er flotte klinker i alle rum, dog er der på hemsen et smukt plankegulv. Der er gulvvarme i hele lejligheden, ligesom der er akustiklofter, hvor der i flere rum er indbyggede spots.
Der er brugsret til hyggelig gårdmiljø, der er inddelt med afskærmning mellem haverne, ligesom der er fint cykelskur.
Der er fine parkeringsmuligheder i området.
En hel unik lejlighed, der skal opleves.
Lejemålet er fra lejers side uopsigeligt de første 12 måneder. Bofællesskab tillades ikke. Der er rygeforbud i hele ejendommen, herunder i lejligheden. Husdyrhold tillades ikke, men der kan gives tilladelse til, at lejer må have en mindre hund.
Lejemålet
Overtagelse
1. november 2024
Værelser
3
Størrelse
72 m²
Type
Lejlighed
Energimærke
B
Sagsnummer
120-12010-9
Økonomi
Husleje excl. forbrug
10.300 kr./md.
Forbrug
1.300 kr./md.
Depositum
30.900 kr.
Forudbetalt leje
10.300 kr.
Indflytningspris
52.800 kr.
Faciliteter
- Kælderrum
- Vaskemaskine
- Tørretumbler
- Opvaskemaskine
- Køleskab
- Fryser
- Cykelkælder/skur
- Fælles gårdanlæg
Jeg vil gerne høre mere om denne bolig
Vi sidder klar til at svare på dine spørgsmål ang. denne flotte bolig og andre spørgsmål du måtte have til at være lejer hos Wagner Ejendomme.
Udfyld dine kontaktinformationer her, og så hører du fra os.
Du må også gerne kontakte os direkte – du finder vores telefon og e-mails her.
Om Wagner Ejendomme
Kontakt os
Bispensgade 9, 1. sal
DK-9000 Aalborg
Mandag-torsdag 08.00-16.00
Fredag 08.00-15.30











