Er det her du skal bo?Smuk herskabslejlighed med stor altan – Elevator i ejendommen
Boulevarden 8, 3. th.
9000 Aalborg
Pris 15.600 kr./md.
Værelser5
Størrelse171 m²
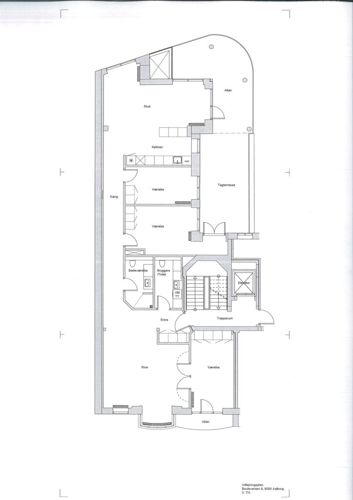
I hjertet af Aalborg ligger denne smukke herskabslejlighed på hele 172 velindrettede m2 med køkkenalrum, opholdsstue, 3 soveværelser samt badeværelse og gæstetoilet. Lejligheden har en kæmpestor vestvendt altan mod gårde samt en charmerende lille balkon mod Boulevarden.
Hele ejendommen har medio 2018 gennemgået en totalrenovering. Vi starter dermed med at træde ind i en smuk og lys opgang med en flot trappe op til lejlighederne – i dagens anledning tager vi elevatoren. Lad os tage den helt klassiske gennemgang af lejligheden; Vi starter i en fin entré med garderobeskabe, hvorefter vi træder ind i den store lyse opholdsstue med en charmerende karnap mod Boulevarden, hvorfra vi kan følge med i byens liv. Fra opholdsstuen går vi gennem dobbeltdørene til lejlighedens ene af 3 soveværelser – dette værelse kan også oplagt indrettes som stue eller kontor. Herfra træder vi ud på den fine balkon, der er med udsigt over Boulevarden.
Tilbage ved entréen finder vi et flot bryggers/gæstetoilet samt det flotte badeværelse. Herfra går vi en tur hen ad fordelingsgangen; her finder vi de næste 2 soveværelser, begge indrettet med garderobeskabe. For enden af gangen kommer vi til det store lyse og moderne køkkenalrum. Her er et lækkert Invita køkken i et dejligt åbent rum med god plads til indretning af spisestue. Fra alrummet er der adgang til lejlighedens meget store altan, der er delvist overdækket..
Der er ligeledes adgang til lækker fælles tagterrasse med smuk udsigt over Aalborg / Nørresundby.
Med adresse på Boulevarden bor man lige der, hvor det hele sker; vrimlen i byens gågader, de mange kulturelle tilbud, specialforretninger og gode indkøbsmuligheder, byens grønne oaser og meget mere.
En helt enestående lejlighed, der skal opleves.
Lejemålet er fra lejers side uopsigelig de første 12 måneder. Husdyrhold tillades ikke. Bofællesskab tillades ikke.
Lejemålet
Overtagelse
1. marts 2026
Værelser
5
Størrelse
171 m²
Type
Lejlighed
Energimærke
C
Sagsnummer
10-1112-8
Økonomi
Husleje excl. forbrug
15.600 kr./md.
Forbrug
1.800 kr./md.
Depositum
46.800 kr.
Forudbetalt leje
15.600 kr.
Indflytningspris
79.800 kr.
Faciliteter
- Kælderrum
- Fælles tagterrasse
- Altan
- Kombi vaske-/tørremaskine
- Opvaskemaskine
- Køle-/fryseskab
- Elevator
- Cykelkælder/skur
- Fælles gårdanlæg
Jeg vil gerne høre mere om denne bolig
Vi sidder klar til at svare på dine spørgsmål ang. denne flotte bolig og andre spørgsmål du måtte have til at være lejer hos Wagner Ejendomme.
Udfyld dine kontaktinformationer her, og så hører du fra os.
Du må også gerne kontakte os direkte – du finder vores telefon og e-mails her.
Om Wagner Ejendomme
Kontakt os
Bispensgade 9, 1. sal
DK-9000 Aalborg
Mandag-torsdag 08.00-16.00
Fredag 08.00-15.30















