HOVSA Boligen du har fundet er desværre udlejet
Vi har mange andre lækre ledige boliger du kan finde her på siden. Du er også meget velkommen til at kontakte os for at høre mere om hvilke boliger vi har, der passer til lige netop dig.
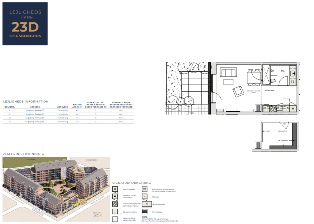
Er det her du skal bo?Skøn 1-værelses med terrasse
Stigsborg Parkvej 95,
9400 Nørresundby
Pris4.700 kr./md.
Værelser1
Størrelse42 m²
Velkommen til et luksuriøst boligområde på Stigsborg – hvor moderne design møder naturens ro.
StigsborgHus er pt. under opførelse. Hold øje på vores hjemmeside for næste åbent hus.
- Tæt på fjord, park og sandstrand
- Eksklusivt byggeri med lækre detaljer
- Alt i hårde hvidevarer og gulvvarme i alle lejligheder
- Altan og/eller terrasse til alle lejligheder
- To fælles tagterrasser, orangeri og skønt gårdrum
- Parkeringsmuligheder i og tæt ved StigsborgHus
- Store vinduespartier, der sikrer naturligt lysindfald
Denne skønne 1-værelses lejlighed byder på et skønt leverum med skab til overtøj og sko, eksklusivt køkken fra HTH med alt i hårde hvidevarer samt et rummeligt badeværelse med vaske- og tørremaskine. Derudover har lejligheden en hems man kan bruge som soverum og en dejlig terrasse.
I parkeringskælderen er der depotrum, cykelparkering og mulighed for leje af p-plads i eller tæt ved StigsborgHus.
StigsborgHus ligger i første parket til fjorden og Stigsparken.
Vi har 149 unikke lejligheder herunder townhouses, penthouses og 2 – 5 værelses lejligheder – så skulle du være interesseret i en anden type eller størrelse, så har vi helt sikkert også en bolig til dig.
Lejemålet er fra lejers side uopsigelig de første 12 måneder. Bofællesskab tillades ikke.
Lejemålet
Overtagelse
Snarest mulig
Værelser
1
Størrelse
42 m²
Type
Lejlighed
Energimærke
A 2015
Sagsnummer
65-6500-9
Økonomi
Husleje excl. forbrug
4.700 kr./md.
Forbrug
575 kr./md.
Depositum
14.100 kr.
Forudbetalt leje
4.700 kr.
Indflytningspris
24.075 kr.
Faciliteter
- Fælles tagterrasse
- Kombi vaske-/tørremaskine
- Opvaskemaskine
- Køle-/fryseskab
- Elevator
- Cykelkælder/skur
- Fælles gårdanlæg
- Parkering
Jeg vil gerne høre mere om denne bolig
Vi sidder klar til at svare på dine spørgsmål ang. denne flotte bolig og andre spørgsmål du måtte have til at være lejer hos Wagner Ejendomme.
Udfyld dine kontaktinformationer her, og så hører du fra os.
Du må også gerne kontakte os direkte – du finder vores telefon og e-mails her.
Om Wagner Ejendomme
Kontakt os
Bispensgade 9, 1. sal
DK-9000 Aalborg
Mandag-torsdag 08.00-16.00
Fredag 08.00-15.30






