HOVSA Boligen du har fundet er desværre udlejet
Vi har mange andre lækre ledige boliger du kan finde her på siden. Du er også meget velkommen til at kontakte os for at høre mere om hvilke boliger vi har, der passer til lige netop dig.
Er det her du skal bo?Unik penthouselejlighed i midtbyen
Vesterbro 68a, 5. tv.
9000 Aalborg
Pris 8.900 kr./md.
Værelser2
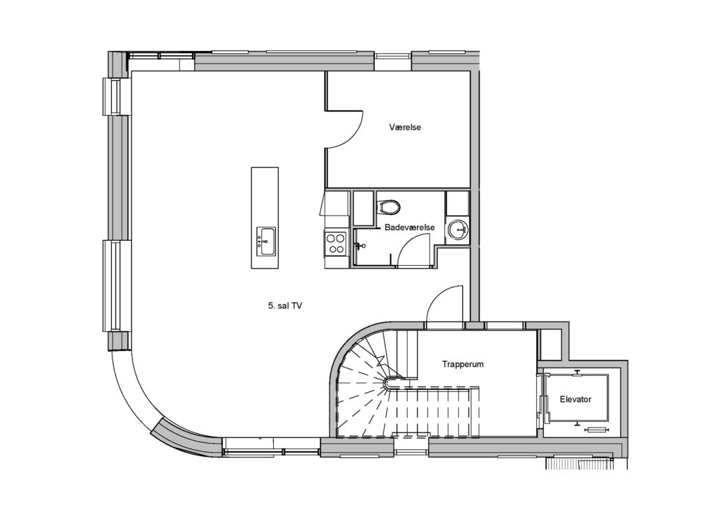
Størrelse87 m²
Denne lækre lejlighed kan nu blive din!
Den er beliggende i et spændende byggeri fra 2014 med elevator.
Lejligheden indeholder fordelingsgang med plads til sko o0g jakker. Herefter møder man et dejligt lyst badeværelse. Lejlighedens hjerte har et lækkert køkken/alrum samt stue i et. Der er et flot lysindfald fra de smukke vinduer samt et skønt view over Vesterbro. Lejligheden byder også på et dejligt soveværelse med kreativ skabsvæg.
I lejligheden er der kræset om materialerne, der er flotte klinker på badeværelset, flotte egetræs parketgulve i de øvrige rum og lækre elementer med corianbordplader. Der er gulvvarme i hele lejligheden.
Der er adgang til én af byens bedst beliggende tagterrasser med smuk udsigt over Aalborg og omegn. Der er en fælles gasgrill på tagterrassen.
En lejlighed, der skal ses – så tøv ikke med at kontakte os.
Lejemålet er fra lejers side uopsigelig de første 12 måneder. Husdyrhold tillades ikke. Bofællesskab tillades ikke. Der er rygeforbud i hele ejendommen, herunder lejligheden.
Lejemålet
Overtagelse
Snarest mulig
Værelser
2
Størrelse
87 m²
Type
Lejlighed
Energimærke
A 2010
Sagsnummer
10-1100-61
Økonomi
Husleje excl. forbrug
8.900 kr./md.
Forbrug
900 kr./md.
Depositum
26.700 kr.
Forudbetalt leje
8.900 kr.
Indflytningspris
45.400 kr.
Faciliteter
- Kælderrum
- Fælles tagterrasse
- Vaskemaskine
- Kombi vaske-/tørremaskine
- Opvaskemaskine
- Køle-/fryseskab
- Elevator
Jeg vil gerne høre mere om denne bolig
Vi sidder klar til at svare på dine spørgsmål ang. denne flotte bolig og andre spørgsmål du måtte have til at være lejer hos Wagner Ejendomme.
Udfyld dine kontaktinformationer her, og så hører du fra os.
Du må også gerne kontakte os direkte – du finder vores telefon og e-mails her.
Om Wagner Ejendomme
Kontakt os
Bispensgade 9, 1. sal
DK-9000 Aalborg
Mandag-torsdag 08.00-16.00
Fredag 08.00-15.30















