HOVSA Boligen du har fundet er desværre udlejet
Vi har mange andre lækre ledige boliger du kan finde her på siden. Du er også meget velkommen til at kontakte os for at høre mere om hvilke boliger vi har, der passer til lige netop dig.
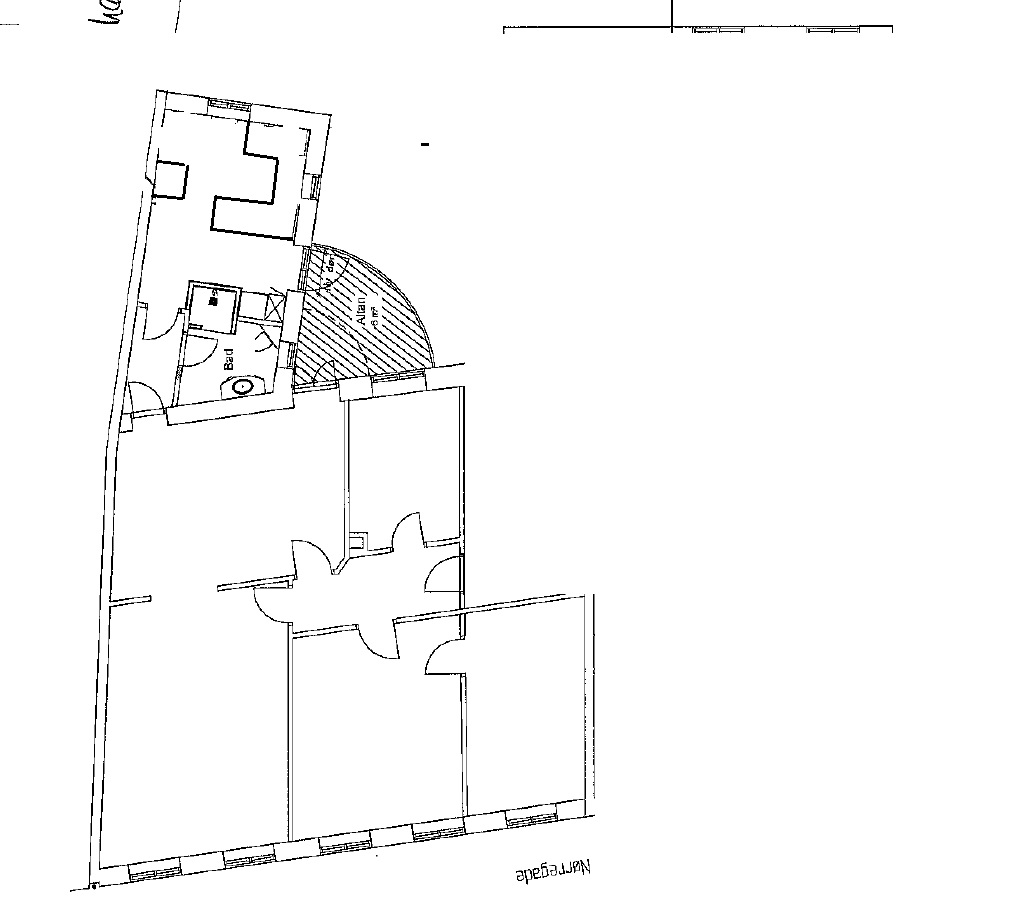
Er det her du skal bo?Charmerende 4-værelses i Nørregade
Nørregade 12, 2. th.
9000 Aalborg
Pris 11.695 kr./md.
Værelser4
Størrelse138 m²
I det hyggelige Nørregade ligger denne charmerende lejlighed.
Lejligheden indeholder en god fordelingsentré, 2 værelser, et stort lyst soveværelse og to smukke stuer én suite, hvoraf den ene har et smukt sildeparketgulv samt direkte udgang til lejlighedens altan. Fra den ene stue kommer man via en mellemgang ind i et dejligt lyst køkken med god skabs- og bordplads. Køkkenet er ligeledes med udgang til altanen. Fra mellemgangen er der adgang til lejlighedens skønne badeværelse, der er lyst og moderne med bruseniche og vindue.
Lejlighedens dejlige altan, der er syd/vest vendt, ligger ned mod den hyggelige gårdside af Nørregade.
Lejlighedens attraktive beliggenhed her i gågaden sikrer, at man har alt hvad hjertet begærer lige indenfor gå afstand; de mange butikker, caféer, kulturelle tilbud, grønne områder, havnefronten, offentlig transport og meget mere.
En skøn lejlighed, der skal opleves.
Lejemålet er fra lejers side uopsigelig de første 12 måneder. Husdyrhold tillades ikke. Bofællesskab tillades ikke.
Lejemålet
Overtagelse
1. juni 2025
Værelser
4
Størrelse
138 m²
Type
Lejlighed
Energimærke
D
Sagsnummer
10-1270-18
Økonomi
Husleje excl. forbrug
11.695 kr./md.
Forbrug
1.500 kr./md.
Depositum
35.085 kr.
Forudbetalt leje
11.695 kr.
Indflytningspris
60.325 kr.
Faciliteter
- Altan
- Vaskemaskine
- Tørretumbler
- Opvaskemaskine
- Køle-/fryseskab
- Cykelkælder/skur
- Fælles gårdanlæg
Jeg vil gerne høre mere om denne bolig
Vi sidder klar til at svare på dine spørgsmål ang. denne flotte bolig og andre spørgsmål du måtte have til at være lejer hos Wagner Ejendomme.
Udfyld dine kontaktinformationer her, og så hører du fra os.
Du må også gerne kontakte os direkte – du finder vores telefon og e-mails her.
Om Wagner Ejendomme
Kontakt os
Bispensgade 9, 1. sal
DK-9000 Aalborg
Mandag-torsdag 08.00-16.00
Fredag 08.00-15.30








